Genehmigungsplanung / Bauantrag

Für die Erstellung der Genehmigungsplanung bietet Ihnen unser Architektur Planungsbüro professionelle Unterstützung sowohl bei der Erstellung und Einreichung Ihres Bauantrags. Unser erfahrenes Team kennt die Anforderungen und Vorschriften, die für eine erfolgreiche Genehmigung Ihres Bauprojekts erforderlich sind.
Unser Ziel ist es, Ihnen dabei zu helfen, Ihre Baugenehmigung so schnell wie möglich zu erhalten. Wir arbeiten eng mit den zuständigen Behörden zusammen und stellen sicher, dass alle erforderlichen Dokumente und Informationen vorliegen. Dabei legen wir großen Wert auf Genauigkeit und Sorgfalt, um mögliche Ablehnungen oder Nachbesserungen zu vermeiden.
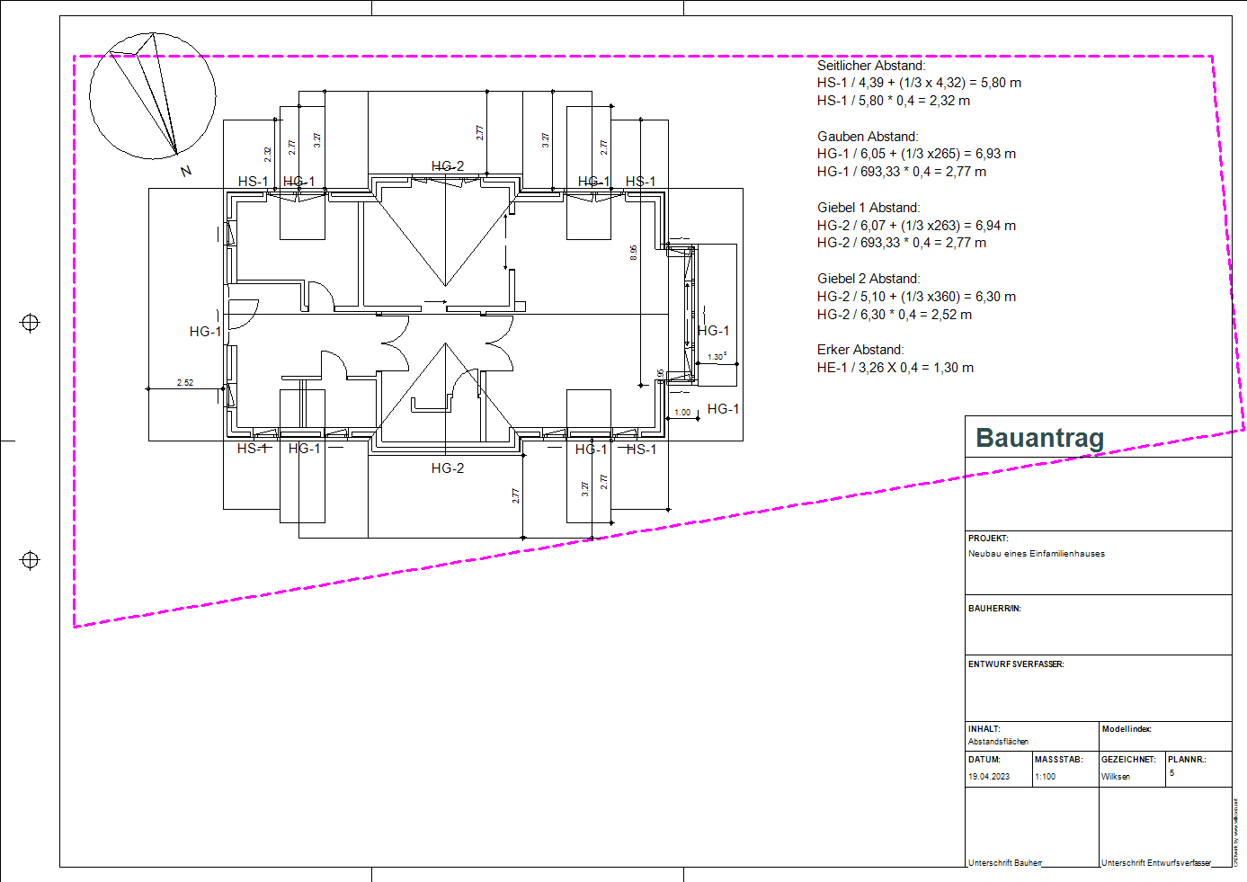
Unsere Genehmigungsplanung umfasst auch die Berücksichtigung von örtlichen Vorschriften und Bauvorschriften. Wir stellen sicher, dass Ihr Projekt allen relevanten Standards entspricht und alle erforderlichen Genehmigungen eingeholt werden.
Wenn Sie eine professionelle Unterstützung bei der Genehmigungsplanung suchen, dann kontaktieren Sie uns noch heute. Wir freuen uns darauf, Ihnen bei Ihrem Bauantrag zu helfen und sicherzustellen, dass Ihr Bauprojekt reibungslos genehmigt wird.






































